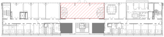
Businessclub II
Daten & Fakten

Businessclub II

Exklusivität und Moderne erwarten Sie im Businessclub II. Individuelle Bestuhlungsmöglichkeiten, vier variable Lounges und Panoramafenster mit Blick ins Stadioninnere geben Ihrer Veranstaltung den perfekten Rahmen.

Fläche
230 m² (+ 70 m² Foyer)

Maximale Personenzahl
180 (+ 50 Foyer)

Technische Ausstattung
Finden Sie die passende Veranstaltungstechnik.

Besonderheiten
Zugang zum Stadioninnenraum
Panoramafenster zu zwei Seiten
Eigener Cateringbereich
Variables Mobiliar für Ihr Event

Veranstaltungsbeispiele
Tagungen, Get-Together, Meetings, Workshops, Vorträge, private Feierlichkeiten

Bestuhlungsmöglichkeiten

Theater/Reihe

120 Sitzplätze

Tafel

60 Sitzplätze
84 Sitzplätze bei geöffneten Wänden

Parlamentarisch

56 Sitzplätze

U-Form

38 Sitzplätze

Carré

48 Sitzplätze

Block

44 Sitzplätze

Bankett

56 Sitzplätze

Stehempfang

bis zu 180 Stehplätze 
+ 50 Stehplätze im Foyer

Ihr Wunsch
ist nicht dabei?
  

Sprechen Sie uns an!

Raumpläne