Der Perfekte Raum

für jeden Anlass

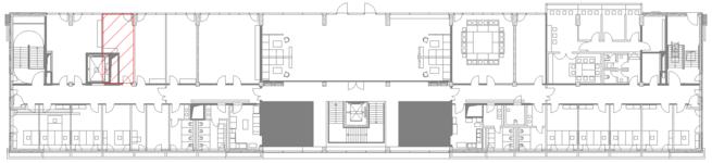
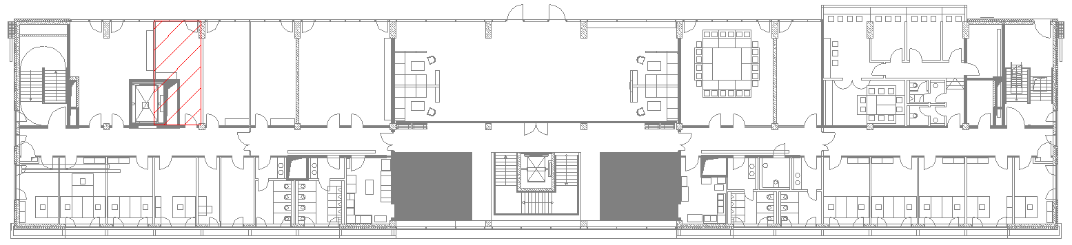
Loge 2

Meetings, Workshops oder Get-Together – unsere Logen bieten die passende Ausstattung für Ihr professionelles Event in kleiner Runde. Das besondere Schmankerl für Ihre Geschäftspartner und Kollegen ist der Zugang zum Stadioninneren.

Fläche
25 m²

Maximale Personenzahl
9

Technische Ausstattung
Finden Sie die passende Veranstaltungstechnik.

Besonderheiten
Blick aufs Spielfeld

Veranstaltungsbeispiele
Workshops, Schulungen, Meetings, Get-Together

Bestuhlungsmöglichkeiten

Tafel

9 Sitzplätze

Stuhlkreis

9 Sitzplätze

Block

8 Sitzplätze

Ihr Wunsch
ist nicht dabei?
  

Sprechen Sie uns an!

Raumpläne